
案件坐落於:新北市板橋區
屋齡:10年內(新古屋)
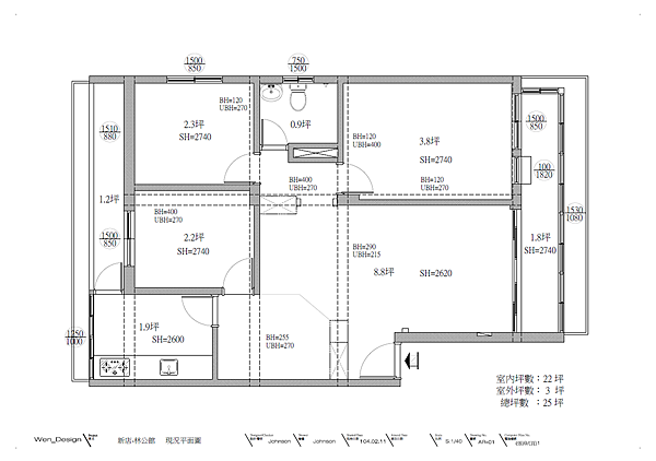
室內坪數:25.3坪
格局:3房2衛2廳
文格設計 發表在 痞客邦 留言(0) 人氣(365)
一個「裝修」案,並非三言兩語就可以執行的!
希望藉由此報導,能夠讓更多有需要的業主,更清楚的瞭解。
感謝「香尼歐」裝修新聞台~ 文格設計 發表在 痞客邦 留言(0) 人氣(119)
本工程位於:士林/社中街室內坪數:17.5坪文格設計 發表在 痞客邦 留言(0) 人氣(479)

此案位於 :萬華-萬大路
新成屋 室內坪數:22.5坪
文格設計 發表在 痞客邦 留言(0) 人氣(312)

此次的裝修為<舊屋翻新>的型式~
4樓蓋(該棟建築物為1~4層樓),室內使用坪數:25/坪
無電梯,標準的舊式公寓,早期為軍人所建造,前身應該也算的上是軍宅吧。
文格設計 發表在 痞客邦 留言(4) 人氣(486)

會發現,很多的設計公司也好,還是設計師,都不是那麼願意承攬所謂的(局部)裝修...
其原因並非是施作物少,導致利潤薄,更不是只願意做(大)工程,而(小)工程不願意碰。
簡單說:每為業主會願意花錢聘請設計師,或找設計公司...等,除了想要提升自我的居住品質之外,最重要的,就是需要有一位專業的人士或團體,來打理好(裝修)必經過程的所有煩雜...等事情。
一位好的設計師,必定是要在工程未動工以前,就需要把所有可能會發生的問題一一的例入考量,甚至是需要在事前就得告知業主。一來,除了要降低施工中,判斷錯誤的風險,二來,
讓業主提早有所認知,也是讓業主得到該有的權益。文格設計 發表在 痞客邦 留言(1) 人氣(770)

入行~邁入第8個年頭...
我並非本科係,但是~我努力過...
我們不斷的在精進自己的“品質”
為得不就是希望
文格設計 發表在 痞客邦 留言(1) 人氣(326)

在2014的下半年,大家會注意到,許多的(YAMAHA/三業機車)都忙著裝修新店面,
規模如此大的機車連鎖店家,在硬體裝修的部份,勢必會有專屬的團體在負責。
本人並非
(YAMAHA/三業機車)的體係人員,但很榮幸的,有機會可以嘎上一角~
文格設計 發表在 痞客邦 留言(1) 人氣(2,639)

續~
先前(新高車業)後,再次的與(YAMAHA)相關車業體系,再度重逢~
案名:順展車業
時間:103年9月29日
文格設計 發表在 痞客邦 留言(1) 人氣(1,279)

本建案坐落於:新北市板橋區
屋齡:20年 (將近)
坪數:20坪 (室內實坪)
家庭成員:2人 (男/女業主)
文格設計 發表在 痞客邦 留言(1) 人氣(564)